Votre espace professionnel clé en main : lumineux, flexible, et à impact social. En louant ces bureaux, vous rejoignez un lieu dédié à l’ESS, unique et convivial tout en soutenant un projet d’insertion professionnelle au cœur de Paris.
Informations pratiques.
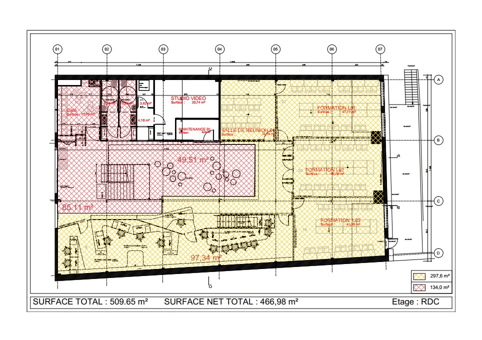
- Surface privative : 297m2 privatifs (bureaux et salles)
- Surface partagée : 134m2 partagés (atrium, cuisine, sanitaires)
- Extérieurs partagés : 43m2 de cour végétalisée avec parking à vélos
- Nombre de postes possibles : entre 100 et 180 en tout
- Équipements inclus : tables et chaises dans les salles, tables de jardin dehors
- Services inclus : nettoyage, cuisine partagée, parking vélos
- Services informatiques optionnels : accès Internet, infogérance, hébergement
- Espaces très lumineux et climatisés.
Conditions de location.
- Durée minimale : 12 mois
- Loyer : 128 500 €HT/an, hors charges
- Charges : 9 200 €HT/an (électricité, eau, sécurité, climatisation)
- Dépôt de garantie : 3 mois
Localisation.
- Adresse : 10 rue des Prairies 75020 Paris
- Transports accessibles : métro ligne 3, ligne 2, tramway T3b, nombreux bus
- Commodités : nombreux restaurants et commerces à proximité
Vos avantages.
- Lieu atypique et inspirant, dédié à l’ESS parisien, idéal pour valoriser votre image
- Espaces prêts à accueillir votre équipe immédiatement
- Flexibilité d’aménagement intérieur selon vos besoins
- Environnement professionnel convivial favorisant les échanges
- Cour extérieure privative et végétalisée pour détente ou évènements
- Contribution directe à un projet d’insertion et d’impact social
Contact et visites.
Pour toute information sur les tarifs et les modalités de location, contactez RezoSocial directement via notre site, sur LinkedIn ou 📩 commercial@rezosocial.com ☎️ 01 86 21 65 36
Visite possible sur rendez-vous.
